HẠ TẦNG KỸ THUẬT

Nhà máy Gạch Ngói Việt Đức

1. Tên dự án: Nhà máy gạch ngói Việt Đức.

2. Loại, cấp công trình: Công trình hạ tầng kỹ thuật, cấp II.

3. Nhóm dự án: Nhóm B.

4. Chủ đầu tư:

Công ty Cổ phần gạch ngói Đồng Nai.

Địa chỉ: 119 Điện Biên Phủ, P. Tân Định, TP. Hồ Chí Minh.

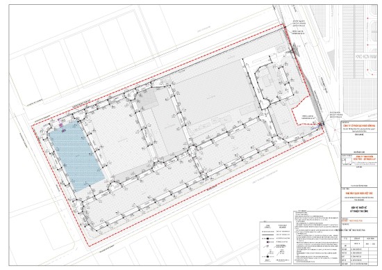
5. Địa điểm xây dựng: P. Tân Uyên, TP. Hồ Chí Minh.

6. Giá trị tổng mức đầu tư HTKT: 155.717.646.532 đồng.

7. Nguồn vốn đầu tư: Vốn doanh nghiệp.

8. Thời gian thực hiện: 2023-2028.

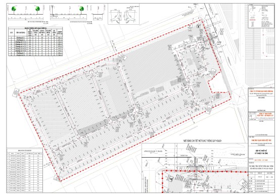
9. Tổng diện tích: 9,4 ha.

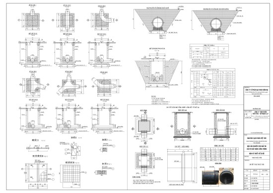
10. Hạng mục thực hiện: Toàn bộ mạng lưới ha tầng kỹ thuật (giao thông, san nền, thoát nước mưa, thoát nước thải, cấp nước, cấp điện, thông tin liên lạc)

11. Nội dung:

Mục tiêu đầu tư xây dựng: Mở rộng quy mô nhà xưởng, nâng cao hiệu quả sản xuất kinh doanh của nhà máy.

Nhà máy gạch ngói Việt Đức góp phần xây dựng và phát triển địa phương trên cơ sở tạo dựng một khu nhà xưởng hoàn chỉnh về mặt hạ tầng, thúc đẩy phát triển kinh tế địa phương, tạo ra việc làm cho người dân trong khu vực.

Nhà máy Gạch Ngói Việt Đức Nhà máy Gạch Ngói Việt Đức Nhà máy Gạch Ngói Việt Đức Nhà máy Gạch Ngói Việt Đức Nhà máy Gạch Ngói Việt Đức Nhà máy Gạch Ngói Việt Đức Nhà máy Gạch Ngói Việt Đức Nhà máy Gạch Ngói Việt Đức Nhà máy Gạch Ngói Việt Đức Nhà máy Gạch Ngói Việt Đức Nhà máy Gạch Ngói Việt Đức Nhà máy Gạch Ngói Việt Đức Nhà máy Gạch Ngói Việt Đức

Dự án khác

0274 2220771