HẠ TẦNG KỸ THUẬT

Khu tái định cư Thanh Tuyền

1. Tên dự án: Khu tái định cư Thanh Tuyền.

2. Loại, cấp công trình: Công trình hạ tầng kỹ thuật, Cấp IV.

3. Nhóm dự án: Nhóm C

4. Chủ đầu tư

Ban quản lý dự án Đầu tư xây dựng huyện Dầu Tiếng

Địa chỉ: ấp 4B, xã Dầu Tiếng, TP.Hồ Chí Minh

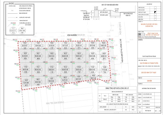
5. Địa điểm xây dựng: P.Tây Nam, TP.Hồ Chí Minh.

6. Giá trị tổng mức đầu tư HTKT:  849.188.952 đồng.

7. Nguồn vốn đầu tư: Ngân sách.

8. Thời gian thực hiện: Năm 2022 – 2025.

9. Tổng diện tích: 0,2ha

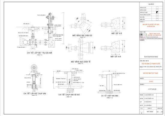
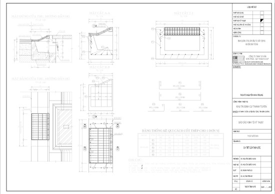
10. Hạng mục thực hiện: Toàn bộ mạng lưới hạ tầng kỹ thuật (giao thông, san nền, thoát nước mưa, thoát nước thải, cấp nước, cấp điện, thông tin liên lạc)

11. Nội dung:

Cơ bản giải quyết nhu cầu định cư, đảm bảo chỗ ở, tái lập cuộc sống nhanh chóng cho người dân trong khu vực thuộc diện thu hồi đất để thực hiện dự án Nấng cấp hạ tầng Đô thị Bến Súc và các công trình khác trên địa bàn.

 

Khu tái định cư Thanh Tuyền Khu tái định cư Thanh Tuyền Khu tái định cư Thanh Tuyền Khu tái định cư Thanh Tuyền Khu tái định cư Thanh Tuyền Khu tái định cư Thanh Tuyền Khu tái định cư Thanh Tuyền Khu tái định cư Thanh Tuyền Khu tái định cư Thanh Tuyền

Dự án khác

0274 2220771