INFRASTRUCTURE

Khu dân cư Lai Hưng

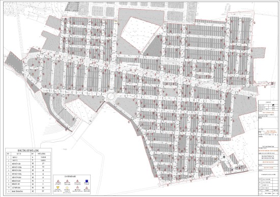
1. Tên dự án: Khu đô thị Thương mại – Dịch vụ Lai Hưng.

2. Loại, cấp công trình: Công trình hạ tầng kỹ thuật, Cấp III.

3. Nhóm dự án: Nhóm C

4. Chủ đầu tư:

Công ty cổ phần Vĩnh Quang.

Địa chỉ: Số 8, Đường số 8, Khu dân cư Bình Phú, P.Bình Phú, TP.Hồ Chí Minh

5. Địa điểm xây dựng: P.Bến Cát, TP.Hồ Chí Minh.

6. Giá trị tổng mức đầu tư HTKT: 454.767.500.000 đồng.

7. Nguồn vốn đầu tư: Vốn doanh nghiệp.

8. Thời gian thực hiện: Năm 2010 – 2030.

9. Tổng diện tích: 82ha

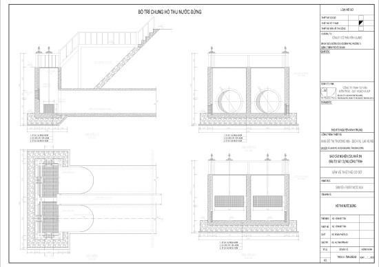
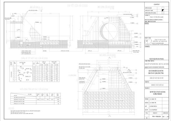
10. Hạng mục thực hiện: Toàn bộ mạng lưới hạ tầng kỹ thuật (giao thông, san nền, thoát nước mưa, thoát nước thải, cấp nước, cấp điện, thông tin liên lạc)

11. Nội dung

Tại địa bàn khu vực phát triển nhiều khu công nghiệp như: KCN Bàu Bàng, KCN Mỹ Phước 1, 2, 3,... dẫn đến nhu cầu về nhà ở phục vụ người lao động tăng cao. Do vậy, dự án khi đi vào hoạt động sẽ giải quyết các vấn đề ăn ở, đi lại cho người dân làm việc trong các khu công nghiệp tại địa phương và lân cận.

Khu dân cư Lai Hưng Khu dân cư Lai Hưng Khu dân cư Lai Hưng Khu dân cư Lai Hưng Khu dân cư Lai Hưng Khu dân cư Lai Hưng Khu dân cư Lai Hưng Khu dân cư Lai Hưng Khu dân cư Lai Hưng Khu dân cư Lai Hưng Khu dân cư Lai Hưng Khu dân cư Lai Hưng

Other projects

0274 2220771