INFRASTRUCTURE

Biệt thự vườn Chánh Mỹ

1. Tên dự án: Khu biệt thự vườn Chánh Mỹ.

2. Loại, cấp công trình: Công trình hạ tầng kỹ thuật, Cấp III.

3. Nhóm dự án: Nhóm C.

4. Chủ đầu tư:

Tổng Công ty Thương mại Xuất nhập khẩu Thanh Lễ - CTCP.

63 Yersin, P. Thủ Dầu Một, TP. Hồ Chí Minh.

5. Địa điểm xây dựng: P. Chánh Hiệp, TP. Hồ Chí Minh.

6. Giá trị tổng mức đầu tư HTKT: 151.958.339.164 đồng.

7. Nguồn vốn đầu tư: Vốn doanh nghiệp.

8. Thời gian thực hiện: Năm 2010 – 2020.

9. Tổng diện tích: 12,75 ha.

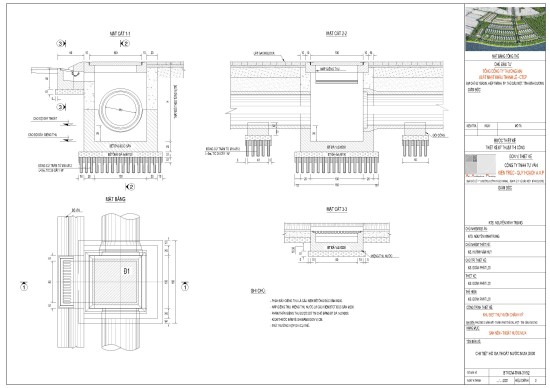
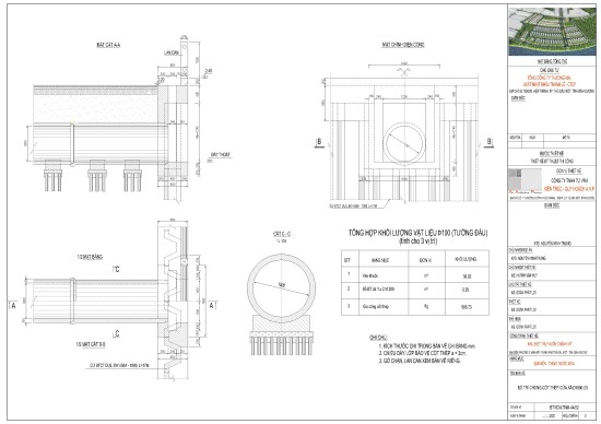
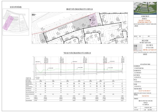
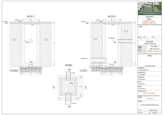
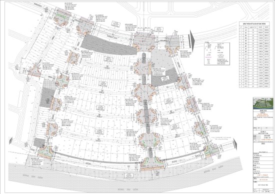
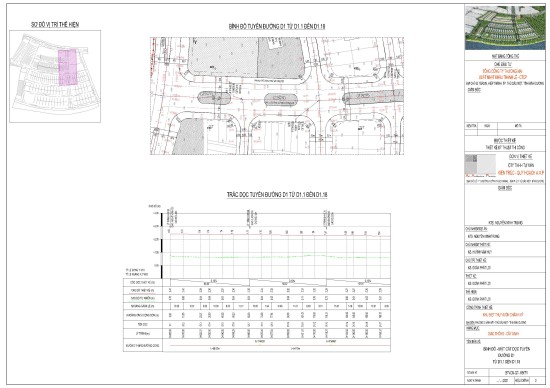
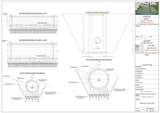
10. Hạng mục thực hiện: Toàn bộ mạng lưới hạ tầng kỹ thuật (giao thông, san nền, thoát nước mưa, thoát nước thải, cấp nước, cấp điện, thông tin liên lạc).

11. Nội dung:

Trên cơ sở phân tích về lợi ích kinh tế, xã hội, kỹ thuật của dự án, A.A.P thực hiện báo cáo nghiên cứu khả thi và thiết kế cơ sở Khu biệt thự vườn Chánh Mỹ; trình Sở Xây dựng tỉnh Bình Dương thẩm định và phê duyệt để Chủ đầu tư có căn cứ thức hiện các bước tiếp theo, thi công xây dựng đưa công trình vào sử dụng.

Khu biệt thự vườn Chánh Mỹ tọa lạc tại phường Chánh Mỹ, thành phố Thủ Dầu Một, tỉnh Bình Dương ( nay là phường Chánh Hiệp, thành phố Hồ Chí Minh). Dự án sở hữu vị trí địa thế thuận lợi, tọa lạc tại vị trí trung tâm, không khí trong lành và các loại hình nhà ở đa dạng gồm nhà phố liên kế, nhà biệt thự vườn, nhà biệt thự song lập.

Biệt thự vườn Chánh Mỹ Biệt thự vườn Chánh Mỹ Biệt thự vườn Chánh Mỹ Biệt thự vườn Chánh Mỹ Biệt thự vườn Chánh Mỹ Biệt thự vườn Chánh Mỹ Biệt thự vườn Chánh Mỹ Biệt thự vườn Chánh Mỹ Biệt thự vườn Chánh Mỹ Biệt thự vườn Chánh Mỹ Biệt thự vườn Chánh Mỹ Biệt thự vườn Chánh Mỹ Biệt thự vườn Chánh Mỹ Biệt thự vườn Chánh Mỹ Biệt thự vườn Chánh Mỹ Biệt thự vườn Chánh Mỹ

Other projects

0274 2220771